€
EUR
£
GBP
fr.
CHF
¥
JPY
$
USD
R$
BRL
₹
INR
Quem Somos
Imóveis
Empreendimentos
Avaliar a minha casa
Serviços
Intermediação de Crédito
Recrutamento
Notícias
Contactos
Mais
Quem Somos
Imóveis
Empreendimentos
Avaliar a minha casa
Serviços
Intermediação de Crédito
Recrutamento
Notícias
Contactos
0
0
€
EUR
£
GBP
fr.
CHF
¥
JPY
$
USD
R$
BRL
₹
INR
OPORTUNIDADE ÚNICA: Moradia T3 com Projeto Aprovado em Infantas, Guimarães!
Guimarães, Infantas
Voltar
\
OPORTUNIDADE ÚNICA: Moradia T3 com Projeto Aprovado em Infantas, Guimarães! - Guimarães, Infantas
Partilhar Imóvel
Facebook
X
Pinterest
WhatsApp
Copiar link
Link copiado
Imprimir ficha
Enviar imóvel a amigo
Insira um Nome
Insira um Email
Insira um endereço de email válido
Insira um Nome
Insira um Email
Insira um endereço de email válido
Li na totalidade e concordo com os termos e condições apresentados.
Saber mais »
Para poder concluir esta operação deve ler e concordar com as nossas condições
Campos obrigatórios *
Enviar
Fotos
Plantas
Seguir imóvel
Seguir imóvel
Receba um alerta quando existir uma Baixa de Preço
Nome
Insira o seu Nome
E-mail
Insira o seu email
Insira um endereço de email válido
Li e aceito a
Política de Privacidade
Para poder concluir esta operação deve ler e concordar com as nossas condições
Insira o código da imagem
Código
Enviar
OPORTUNIDADE ÚNICA: Moradia T3 com Projeto Aprovado em Infantas, Guimarães!
127.000 €
Ref:
ASG26029
3
4
2
190,9 m²
228 m²
1303,5 m²
OPORTUNIDADE ÚNICA: Moradia T3 com Projeto Aprovado em Infantas, Guimarães!
Esta é a oportunidade de construir a casa dos seus sonhos numa localização privilegiada em Infantas, Guimarães, perto da montanha da Penha. O projeto já está aprovado, oferecendo um T3 moderno e funcional.
- Tipologia T3:
Moradia familiar com três quartos (duas suítes e um quarto adicional).
- Projeto Aprovado:
A principal vantagem é ter um projeto já aprovado, o que acelera o processo de construção.
- Localização:
Inserida na freguesia de
Infantas
, concelho de
Guimarães
.
Áreas e Layout
A moradia dispõe de áreas generosas e um layout bem definido, conforme as plantas aprovadas:
- Área Bruta Total: 228.00 m²
- Área Útil Total: 190.90 m²
- Área Total do Terreno: 1303.50 m²
Layout Detalhado:
- Piso Cave (83,71 m² úteis):
Inclui uma espaçosa garagem/arrumos (65,30 m²), WC completo, e áreas de circulação e arrumos adicionais.
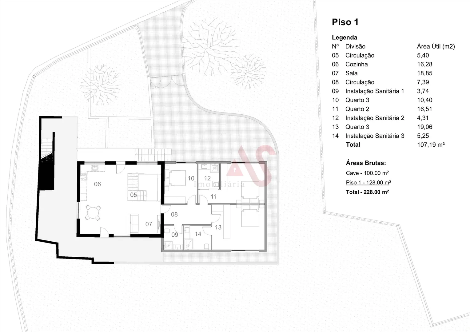
- Piso 1 (107,19 m² úteis):
Contempla cozinha (16,28 m²), sala (18,85 m²), hall dos quartos (7,39 m²), WC completo (3,74 m²), um quarto (10,40 m²), e
duas suítes
completas. A primeira suíte tem 16,51 m² de quarto e 4,31 m² de WC, enquanto a segunda oferece 19,06 m² de quarto e 5,25 m² de WC.
Distância ao Centro de Guimarães
-
De carro:
O trajeto demora cerca de
10 minutos
.
Pontos de Interesse em Infantas e Arredores
-
Proximidade ao Monte da Penha:
A partir de Infantas, está a uma
curta distância de carro, apenas a 6 minutos, do Santuário da Penha
, que oferece as melhores vistas panorâmicas sobre a região e áreas de lazer arborizadas.
- Gastronomia Regional:
Nas redondezas de Infantas e freguesias vizinhas (como Mesão Frio), existem vários restaurantes de comida tradicional minhota, conhecidos pelo cabrito e pelo arroz de pica-no-chão.
Esta é a oportunidade perfeita para investir numa moradia com um projeto moderno e todas as comodidades necessárias, num local privilegiado de Guimarães.
Referência: ASG26029
Por sermos intermediários de crédito devidamente autorizados pelo Banco de Portugal (Reg. 2736), fazemos a gestão de todo o seu processo de financiamento, sempre com as melhores soluções de mercado.
Porquê escolher a AS Imobiliária?
Com mais de 16 anos no ramo imobiliário e milhares de famílias felizes, dispomos de 9 agências estrategicamente localizadas, para o servir com proximidade, corresponder à suas expectativas e ajudá-lo a adquirir a sua casa de sonho. Compromisso, Competência e Confiança são os nossos valores que entregamos aos nossos Clientes na hora de comprar, arrendar ou vender o seu imóvel.
A nossa prioridade é a sua Felicidade!
Na AS Imobiliária somos apaixonados por vender casas!
Especialistas imobiliários em Vizela ; Guimarães ; Taipas ; Felgueiras ; Lousada ; Santo Tirso ; Barcelos ; São João da Madeira ; Porto ; Braga
Tipo de imóvel
Moradia para Restaurar
Tipologia
3 Quartos
Objetivo
Venda
Estado
Para remodelar
Preço
127.000 €
Ano Construção
N/D
País
Portugal
Distrito
Braga
Concelho
Guimarães
Freguesia
Infantas
Zona
N/D
José Araújo
+351 916 057 091
Chamada para a rede móvel nacional
Pretendo ser contactado
Data
Hora
Nome
Insira um Nome
E-mail
Insira um Email
Insira um endereço de email válido
Contacto
Insira o seu contacto telefónico
Mensagem
Solicito mais informações, sem qualquer compromisso, sobre o imóvel ASG26029
Li na totalidade e concordo com os termos e condições apresentados.
Política de Privacidade
Para poder concluir esta operação deve ler e concordar com as nossas condições
Código
Insira o código apresentado na imagem
Enviar
Simulador de Crédito
Simulador de IMT
Valor do imóvel*
Montante de Empréstimo*
A sua idade*
Prazo empréstimo *
Prestação Mensal
0.00
€
O valor da prestação apresentada não inclui Seguro de Vida e Seguro Lar.
Indexante
0.000
%
TAEG
0.000
%
Spread
0.000
%
Prazo
0
Anos
TAN
0.000
%
Simular
Mais informações
Inserir aqui o disclaimer. Isto é apenas uma simulação. Esta simulação de crédito não tem fins lucrativos.
Dados de Intermediação de Crédito - (Intermediário de Crédito nº 0002736)
Local do imóvel*
Selecione
Portugal Continental
Regiões Autónomas
Finalidade*
Selecione
Habitação Própria Permanente
Habitação Secundária ou Arrendamento
Prédios Rústicos
Outros
Valor do imóvel*
Valores complementares*
IMT
0.00
€
Imposto de Selo (0,8%)
0.00
€
Valores complementares
0.00
€
Total a pagar
0.00
€
Mais informações
Simular
Inserir aqui o disclaimer. Isto é apenas uma simulação. Esta simulação de crédito não tem fins lucrativos.
Dados de Intermediação de Crédito - (Intermediário de Crédito nº 0002736)
Saiba mais sobre a sua simulação
Nome
Campo obrigatório
E-mail
Campo obrigatório
Insira um e-mail válido
Contacto
Campo obrigatório
Observações
Isto é apenas uma simulação. Esta simulação de crédito não tem fins lucrativos.
Li e aceito a
Política de Privacidade
Para poder concluir esta operação deve ler e concordar com as nossas condições
Código
Insira o código apresentado na imagem
Enviar
Características Gerais
Gerais
Divisões
Divisões
Área
Pavimento
Paredes
Tectos
Observações
Meio Envolvente
Facilidades
Domótica
Energias Renováveis
Veja também
Guimarães, Brito
299.000 €
Moradia T3 de Gaveto em Brito, Guimarães
299.000 €
Moradia T3 de Gaveto em Brito, Guimarães
Guimarães, Brito
3
3
3
238 m²
A. Bruta
148 m²
A. Útil
300 m²
A. Terreno
Contactar
Reservado
Guimarães, Tabuadelo e São Faustino
Sob Consulta
Moradia T2 em São Faustino, Guimarães - Excelente Oportunidade de Investimento
Sob Consulta
Moradia T2 em São Faustino, Guimarães - Excelente Oportunidade de Investimento
Guimarães, Tabuadelo e São Faustino
2
1
2
156 m²
A. Bruta
78 m²
A. Útil
963 m²
A. Terreno
Contactar
Guimarães, Candoso (São Martinho)
235.000 €
Andar Moradia T2+1 Totalmente Renovado | Terraço | 2 Frentes | 100% Disponível | Guimarães
235.000 €
Andar Moradia T2+1 Totalmente Renovado | Terraço | 2 Frentes | 100% Disponível | Guimarães
Guimarães, Candoso (São Martinho)
2
1
80 m²
A. Útil
200 m²
A. Terreno
Contactar
Mais imóveis +
Estamos disponíveis para o ajudar
Pretendo ser contactado
Data
Hora
Nome
Insira um Nome
E-mail
Insira um Email
Insira um endereço de email válido
Contacto
Insira o seu Contacto
Mensagem
Li e aceito a
Política de Privacidade
Para poder concluir esta operação deve ler e concordar com as nossas condições
Código
Insira o código apresentado na imagem
Enviar
O que é a pesquisa responsável
Esta pesquisa permite obter resultados mais ajustados à sua disponibilidade financeira.